Search
Ask About Our Tax Season Specials!
  • $85,000
  • $1,400/mo

Overview

  • 3
    Bedrooms
  • 2
    Bathrooms
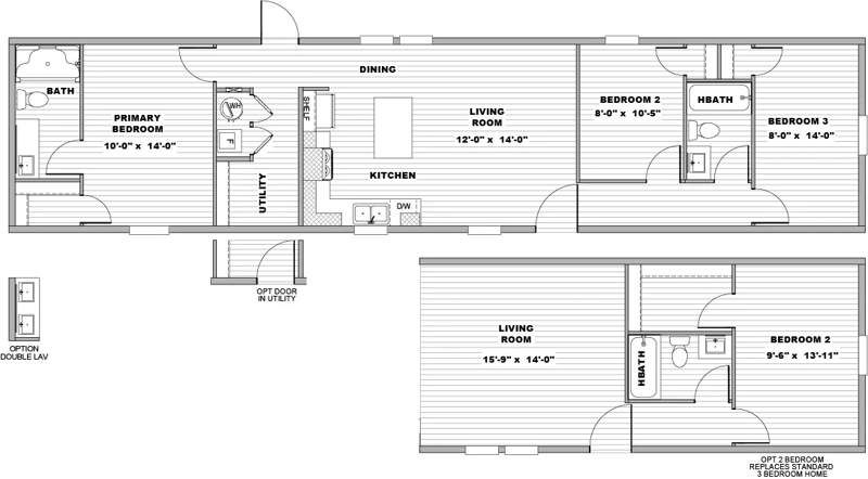
  • 990 sqft
    Area Size

Description

Limited-Time Move-In Special
Receive up to 2 months FREE RENT when you buy a qualified home in our community!

This 990 square feet manufactured home in the Woodland Heights community of Asheville, NC offers 3 bedrooms and 2 bathrooms. Built in 2026 by Clayton, this home features a spacious living room, dining room, master bedroom with an en suite bathroom and walk-in closet, a well-equipped kitchen, and a convenient laundry room. Interior features include central A/C for comfort, washer/dryer hook ups for convenience, a hot water heater for hot showers, and appliances such as an oven, fridge, and dishwasher for modern living.

Woodland Heights is a charming community located in the picturesque city of Asheville, NC. Residents of this community enjoy a peaceful and serene setting surrounded by nature, while still being close to all the amenities and attractions of Asheville. The community offers residents a sense of community with shared spaces and events, as well as beautiful views and easy access to outdoor activities such as hiking and biking trails. Woodland Heights is the perfect place to call home for those looking for a tranquil retreat in the heart of Asheville.

  • Address: 89 Black Locust Drive Lot #W9
  • City: Asheville
  • State/county: NC

Details

  • Property ID MC2448
  • Price $85,000
  • Property Size 990 sqft
  • Bedrooms 3
  • Bathrooms 2
  • Year Built 2026
  • Property Status For Rent, For Sale
  • Lot Number W9
  • Community Type All Ages
  • Manufacturer Clayton
  • Home Model Unknown

Similar Listings

Compare listings

Compare